木場10号地/収納力のある家事ラク仕様な家
価格:3,370万円
物件種目
新築一戸建て
土地面積
169.88㎡(51.38坪)
所在地
大村市木場1丁目86-22
築年月
令和8年7月完成予定
間取り
3LDK+小上がり畳コーナー
建物面積
103.50 ㎡(31.3坪)
令和8年7月完成予定
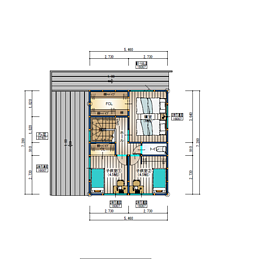
3LDKの2階建て物件です。

特徴
「高級感のあるモダンデザイン 収納力のある家事ラク仕様な家」
【木場スマートインターまですぐそこ!】諫早・佐世保方面への通勤も楽々。
●19畳LDK+畳コーナーで家族にちょうどいい”ゆとり設計”
・1階にファミリークローゼット(FCL)
・各部屋+2階にも収納あり
●家事ラク動線
・キッチン横にパントリー
・洗面・脱衣・浴室がまとまった配置
・玄関→収納→LDKの流れがスムーズ
●建売感のない外観デザイン
・ブラック×木目の組み合わせで高級感のあるモダンデザイン
・凹凸をつけたファサードでシンプルなのに印象的
・玄関を奥まらせた設計でプライバシー+雨に強い動線








