宮小路10号地/平屋/日当たりのよい広々LDKのある住宅
価格:詳細はお問合せください
物件種目
新築一戸建て
土地面積
198.70㎡(60.10坪)
所在地
大村市宮小路3丁目1405-12
築年月
令和8年3月完成予定
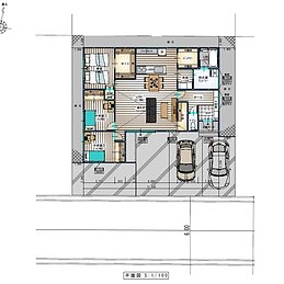
間取り
3LDK
建物面積
94.40 ㎡(28.56坪)
宮小路10 モデルハウス 3台駐車可の平屋物件 広々リビングと3つの部屋でちょうどいい住空間
令和8年3月完成予定
3LDKの平屋建て物件です。
リビングは21畳の広々スペースを設置。テレビ裏にも背面収納スペースがあります。
コンパクトながらも3部屋と各部屋収納設置、パントリーや洗面と脱衣室別など考えられた間取りとなっています。


お問合せ先
0120-36-1118
詳しい資料はこちらから⇒ 資料請求







